
An independent Maisonette (No1) in Sarakiniko-GAVRIO (farm Β) -SOLD
S O L D !
Εμβαδομετρικά και Λειτουργικά Xαρακτηριστικά
Κωδικός Ακινήτου:
area code : 222
Τύπος Κατοικίας:
Independent maisonette in a compound of 4 houses
Περιοχή:
ΣΑΡΑΚΙΝΙΚΟ- ΓΑΥΡΙΟΥ-ΑΝΔΡΟΥ
Διεύθυνση:
ΣΑΡΑΚΙΝΙΚΟ
Εμβαδόν Κατοικίας :
Area : 108,05 sq. meters
Τύπος Κατασκευής:
Οπλισμένο Σκυρόδεμα
Κρεβατοκάμαρες:
Bedrooms : 4
Μπάνια - WC :
Bathrooms: 3
Λοιπά Στοιχεία :
Έτος κατασκευής: 2010-2011, Νεόδμητο, 3 επίπεδα, Θέα-Βεράντα,Εσωτερική σκάλα,Αυτόνομη θέρμανση,
Πρόσβαση με Άσφαλτο, Θέση στάθμευσης, Πόρτα ασφαλείας
Διαθεσιμότητα:
S O L D !
Στοιχεία του Συγκροτήματος
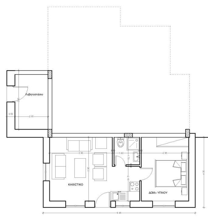
Κατόψεις Κατοικίας
Φωτογραφίες με Θέα
Φωτογραφίες












